💧 Le Simulazioni di Rischio
Dalla documentazione 3D agli scenari predittivi per la gestione del rischio idraulico
Dal Rilievo alla Previsione
Il gemello digitale ad alta precisione, ottenuto dall'integrazione di scansioni laser e fotogrammetria aerea, è stato utilizzato come base per creare modelli idraulici avanzati. Questi modelli permettono di simulare scenari di allagamento, valutare il rischio e pianificare interventi di mitigazione per proteggere il patrimonio storico di Cosenza.
Modellazione BIM dall'As-Built
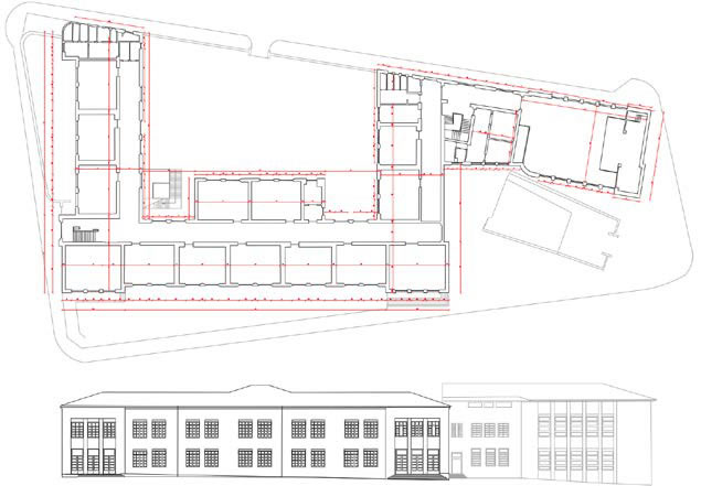
Le nuvole di punti ad alta densità sono state utilizzate per creare modelli BIM (Building Information Modeling) dell'edificio ICS Spirito Santo. Il BIM as-built rappresenta fedelmente lo stato attuale della struttura con precisione millimetrica, includendo informazioni geometriche, strutturali e architettoniche.
Processo di Modellazione
- Importazione nuvola di punti in ambiente BIM
- Estrazione automatica e manuale di elementi architettonici
- Modellazione parametrica di muri, solai, coperture
- Arricchimento con informazioni tecniche e materiali
- Validazione dimensionale rispetto ai dati laser
Vantaggi del BIM As-Built
- Base accurata per progettazione interventi
- Analisi strutturale e vulnerabilità sismica
- Pianificazione manutenzione programmata
- Gestione digitale del patrimonio edilizio
- Documentazione storica e archivio digitale
🏛️ Precisione Millimetrica per Edifici Storici
La modellazione BIM da scan-to-BIM ha permesso di documentare con precisione millimetrica le irregolarità geometriche tipiche degli edifici storici (pareti non ortogonali, spessori variabili, deformazioni strutturali), informazioni impossibili da ottenere con rilievi tradizionali.
Database GIS Territoriale
Tutti i dati acquisiti sono stati integrati in un Sistema Informativo Geografico (GIS) georeferenziato, creando un database territoriale completo e interrogabile. Il GIS permette di gestire, analizzare e visualizzare informazioni spaziali multi-scala, dall'edificio singolo all'intero contesto urbano.
Contenuti del Database GIS
- Geometrie 3D: Modelli tridimensionali georeferenziati di edifici e territorio
- Ortofoto: Immagini aeree ad alta risoluzione come base cartografica
- DTM e DSM: Modelli digitali del terreno e delle superfici per analisi altimetriche
- Dati storici: Informazioni su eventi alluvionali passati (alluvione 1959)
- Classificazione rischio: Aree P1, P2, P3 secondo Piano Stralcio di Bacino
- Infrastrutture: Rete idrografica (Crati, Busento) e sistema fognario
⚠️ Area ad Alto Rischio Idraulico
Il centro storico di Cosenza ricade in zona P2/P3 (pericolosità media/elevata) nel Piano di Assetto Idrogeologico. L'alluvione del 24 novembre 1959, con 122mm di pioggia in 24 ore e portata massima di 437 m³/s, ha evidenziato la vulnerabilità del territorio alla confluenza Crati-Busento.
Modellazione Idraulica e Scenari
Il modello digitale del terreno ad alta risoluzione è stato utilizzato come input per software di modellazione idraulica 2D/3D. Questi modelli simulano il comportamento delle acque superficiali durante eventi di piena, considerando la morfologia del territorio, gli edifici come ostacoli e le direzioni di deflusso preferenziali.
Scenari di Allagamento Simulati
- Evento TR = 50 anni: Simulazione piena con tempo di ritorno cinquantennale
- Evento TR = 100 anni: Scenario di allagamento centennale per pianificazione
- Evento TR = 200 anni: Scenario catastrofico per valutazione rischio estremo
- Rottura arginale: Simulazione cedimento argine fluviale con onda di piena
- Insufficienza fognaria: Allagamento da incapacità smaltimento rete urbana
🌊 Output delle Simulazioni
Le simulazioni producono mappe di tirante idrico (altezza acqua), velocità di flusso, tempo di arrivo dell'onda di piena ed estensione dell'area allagata. Questi dati permettono di identificare le zone più vulnerabili e pianificare misure di protezione mirate.
Visualizzazioni Scenari PRE/POST Allagamento
I render fotorealistici mostrano il confronto tra lo stato attuale e gli scenari di allagamento per le tre aree critiche del centro storico di Cosenza.
Applicazioni Pratiche
I modelli e le simulazioni sviluppate nel progetto SMART-FLOOD hanno molteplici applicazioni concrete per la gestione del rischio idraulico e la tutela del patrimonio storico.
Sistema Allerta
Base per sistema di early warning che predice allagamenti in tempo reale
Pianificazione Protezione
Progettazione opere di difesa idraulica e mitigazione rischio
Piani di Emergenza
Definizione vie di fuga e zone sicure per evacuazione popolazione
Tutela Patrimonio
Protezione mirata di edifici storici vincolati in aree a rischio
Valutazione Danni
Stima preventiva danni economici per diversi scenari alluvionali
Aggiornamento PAI
Supporto tecnico per revisione Piano Assetto Idrogeologico
Impatto per il Territorio
Il progetto SMART-FLOOD ha fornito alle autorità locali strumenti concreti per la gestione del rischio idraulico nel centro storico di Cosenza. Il database GIS, i modelli BIM e le simulazioni idrauliche rappresentano un patrimonio informativo che rimarrà disponibile per supportare decisioni future su interventi di mitigazione, pianificazione urbanistica e gestione delle emergenze.
🎯 Valore Aggiunto del Gemello Digitale
L'integrazione di tecnologie avanzate (laser scanner, droni, BIM, GIS) ha permesso di creare non solo una documentazione accurata dello stato attuale, ma soprattutto uno strumento predittivo per testare scenari futuri e valutare l'efficacia di interventi prima della loro realizzazione fisica.
Partner del Progetto
UNICAL
Università della Calabria
CNR-IRPI
Istituto Protezione Idrogeologica
TECH4YOU
Partner Tecnologico
Comune di Cosenza
Ente Territoriale
Tecnologie Avanzate per la Protezione del Territorio
Il progetto SMART-FLOOD dimostra come l'integrazione di rilievi 3D, modellazione BIM e analisi GIS possa fornire strumenti concreti per la gestione del rischio idraulico e la tutela del patrimonio storico.
